399 800 ₴

В качестве сырья можно использовать уголь, антрацит, дрова, брикет, торф, отходы деревообработки, лузгу брикетированную, солому, макулатуру - подача топлива ручная. Возможно использовать топливное сырье с высокой влажностью (60% и более). КПД составляет 86-93% в зависимости от вида топлива.
Используется для центрального отопления индивидуального жилья и жилых комплексов, административных, промышленных и складских помещений, особенно деревоперерабатывающих предприятий, животноводческих комплексов, павильонов, теплиц, школ, магазинов, медицинских учреждений.
Конструкция котла предусматривает его эксплуатацию вместе с электронным пультом управления и вентиляторами поддува.
Система регулирования основана на электронном регуляторе, который предназначен для обеспечения заданной температуры теплоносителя на выходе твердотопливного котла.
Принцип работы прибора заключается в управлении процессом горения топлива и циркуляцией теплоносителя путем регулировки оборотов вентиляторов, нагнетающих воздух в топку котла, и подачей питания на циркуляционный насос.
Состояние вентиляторов и насоса определяется температурой теплоносителя на выходе котла, которая измеряется с помощью цифрового датчика температуры.
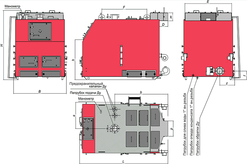
Котел «Ретра-3М» представляет собой конструкцию из прочного листового металла с очень развитой поверхностью приема тепла. Котел имеет трехкамерную структуру. Первая камера (топка) имеет большой объем, что позволяет максимально продлить период сгорания одноразовой загрузки топлива. В связи с чем, после розжига нет необходимости в постоянном обслуживании. Вторая камера выполняет функцию отбора тепла от продуктов сгорания. Колосники оборудованы механическим разрыхлителем. Для интенсификации процесса горения установлены вентиляторы, подающие воздух через воздушные каналы по всему объему топки. Корпус котла теплоизолированный.






| Основные | |
|---|---|
| Мощность номинальная | 800 МВт |
| Коэффициент полезного действия | 93 % |
| Страна производитель | Украина |
| Гарантийный срок | 36 мес |
| Производитель | Ретра |
| Вес | 5.73 т |
| Тип промышленного котла по виду теплоносителя | Водогрейный |
| Тип промышленного котла по конструктивным особенностям | Водотрубный |
| Тип промышленного котла по типу топлива | Твердотопливный |
| Вид теплоносителя | Вода |
| Максимальная температура теплоносителя | 95 град. |
| Максимальная температура окружающей среды | 50 град. |
| Минимальная температура окружающей среды | 5 град. |
| Максимальное рабочее давление | 4 бар |
| Минимальное рабочее давление | 1.5 бар |
| Расход топлива | 0.275 куб. м/час |
| Тип парового котла | Промышленный |
| Теплоноситель | Вода |
| Тип котла | Длительного горения |
| Площадь обогрева | 8000 |
| Автоматическая подача топлива | Нет |
| Вид топлива | Твердое |
| Минимальная температура дымовых газов | 120.0 |
| Максимальная температура дымовых газов | 140.0 |
| Назначение котла | Одноконтурный |
| Способ установки | Напольный |
| Материал теплообменника | котельная сталь 8 мм |
| Способ отвода отработанных газов | Дымоход |
| Цвет | Красный |
| Объем воды в котле | 1630 л |
| Виды топлива | |
| Виды твердого топлива | Антрацит, Брикеты, Бурый уголь, Горючие сланцы, Дрова, Каменный уголь, Кокс |
| Электрические параметры | |
| Напряжение сети | 220~240 В |
| Частота тока | 50 Гц |
| Потребляемая мощность | 1150 Вт |
| Габаритные и присоединительные размеры | |
| Высота | 2590 мм |
| Ширина | 2090 мм |
| Диаметр дымохода | 600 мм |
| Длина | 3260 мм |
| Диаметр линии подвода теплоносителя | 150 мм |
| Диаметр линии отвода теплоносителя | 150 мм |
| Длина дымохода | 25 |
| Дополнительные характеристики | |
| Дисплей | Да |
| Защита от замерзания | Нет |
| Электронное зажигание | Нет |
| Уровень шума | 44 дБ |
| Сжигания топлива на колосниковой решетке | True |
| Камера двойного сгорания | True |
| Циркуляционный насос | True |
| Подключение косвенного бойлера | да |
| Охлаждающий контур | False |
| Габаритные размеры топки | |
| Объем камеры сгорания | 2.7 куб. м |
| Ширина топки | 1400 мм |
| Длина топки | 1770 мм |
| Высота топки | 1275 мм |
| Пользовательские характеристики | |
| Состояние | Hовое |