363 400 ₴

Як сировина можна використовувати вугілля, антрацит, дрова, брикет, торф, відходи деревообробки, лузку брикетовану, солому, макулатуру — подавання палива ручне. Можливо використовувати паливну сировину з високою вологістю (60% і більше). ККД становить 86-93% залежно від типу палива.
Використовується для центрального опалення індивідуального житла та житлових комплексів, адміністративних, промислових і складських приміщень, особливо деревопереробних підприємств, тваринних комплексів, павільйонів, теплиць, шкіл, магазинів, медичних установ.
Конструкція котла передбачає його експлуатацію разом з електронним пультом керування і вентиляторами піддування.
Система регулювання ґрунтується на електронному регуляторі, який призначений для забезпечення заданої температури теплоносія на виході твердопаливного котла.
Принцип роботи приладу полягає в керуванні процесом горіння палива та циркуляцією теплоносія за допомогою регулювання обертів вентиляторів, що нагнітають повітря в топку котла, і подаванням живлення на циркуляційний насос.
Стан вентиляторів і насоса визначається температурою теплоносія на виході котла, яка вимірюється за допомогою цифрового датчика температури.
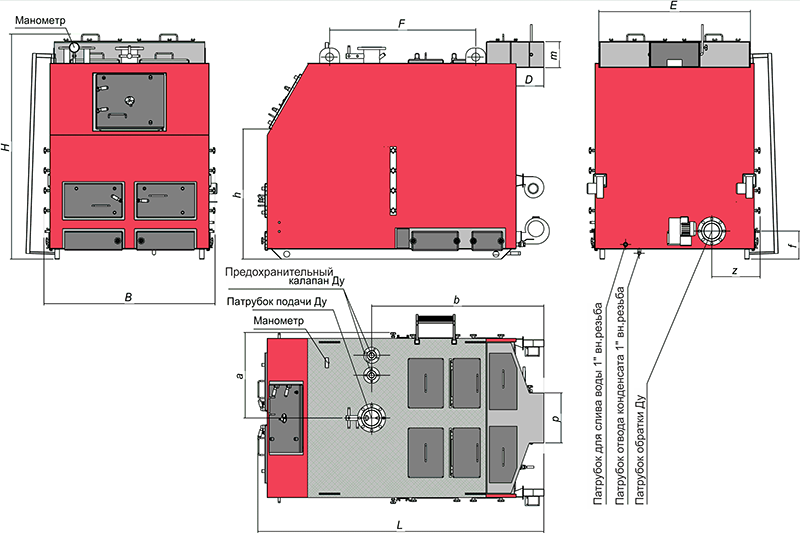
Котел «Ретра-3М» являє собою конструкцію з міцного листового металу з дуже розвиненою поверхнею приймання тепла. Котел має трикамерну структуру. Перша камера (топка) має великий об'єм, що дає змогу максимально продовжити період згоряння одноразового завантаження палива. У зв'язку з чим, після розпалювання немає потреби в постійному обслуговуванні. Друга камера виконує функцію відбору тепла від продуктів згоряння. Колосники обладнані механічним розпушувачем. Для інтенсифікації процесу горіння встановлені вентилятори, що дають повітря через повітряні канали на всьому об'ємі топки. Корпус котла теплоізольований.






| Основні | |
|---|---|
| Потужність номінальна | 700 МВт |
| Коефіцієнт корисної дії | 93 % |
| Країна виробник | Україна |
| Гарантійний термін | 36 міс |
| Виробник | Ретра |
| Вага | 4.78 т |
| Тип промислового котла за видом теплоносія | Водогрійний |
| Тип промислового котла за конструктивними особливостями | Водотрубний |
| Тип промислового котла за типом палива | Твердопаливний |
| Вид теплоносія | Вода |
| Максимальна температура теплоносія | 95 град. |
| Максимальна температура навколишнього середовища | 50 град. |
| Мінімальна температура навколишнього середовища | 5 град. |
| Максимальний робочий тиск | 4 бар |
| Мінімальний робочий тиск | 1.5 бар |
| Витрата палива | 0.24 куб.м/год |
| Тип парового котла | Промисловий |
| Теплоносій | Вода |
| Тип котла | Тривалого горіння |
| Площа обігріву | 7000 |
| Автоматична подача палива | Немає |
| Вид пального | Тверде |
| Мінімальна температура димових газів | 120.0 |
| Максимальна температура димових газів | 140.0 |
| Призначення котла | Одноконтурний |
| Спосіб установки | Підлоговий |
| Матеріал теплообмінника | котельня сталь 8 мм |
| Спосіб відведення відпрацьованих газів | Димар |
| Колір | Червоний |
| Об'єм води в котлі | 1470 л |
| Види палива | |
| Види твердого палива | Антрацит, Брикети, Буре вугілля, Горючі сланці, Дрова, Кам'яне вугілля, Кокс |
| Електричні параметри | |
| Напруга мережі | 220~240 В |
| Частота струму | 50 Гц |
| Споживана потужність | 1010 Вт |
| Габаритні і приєднувальні розміри | |
| Висота | 2550 мм |
| Ширина | 1890 мм |
| Діаметр димоходу | 500 мм |
| Довжина | 3090 мм |
| Діаметр лінії підведення теплоносія | 150 мм |
| Діаметр лінії відведення теплоносія | 150 мм |
| Довжина димаря | 20 |
| Додаткові характеристики | |
| Дисплей | Так |
| Захист від замерзання | Ні |
| Електронне запалювання | Ні |
| Рівень шуму | 44 дБ |
| Спалювання палива на колосникових гратах | True |
| Камера подвійного згоряння | True |
| Циркуляційний насос | True |
| Підключення бойлера непрямого | так |
| Охолоджуючий контур | False |
| Габаритні розміри топки | |
| Об'єм камери згоряння | 2.36 куб. м |
| Ширина топки | 1315 мм |
| Довжина топки | 1370 мм |
| Користувальницькі характеристики | |
| Стан | Нове |
| Висота топки | 12785 |